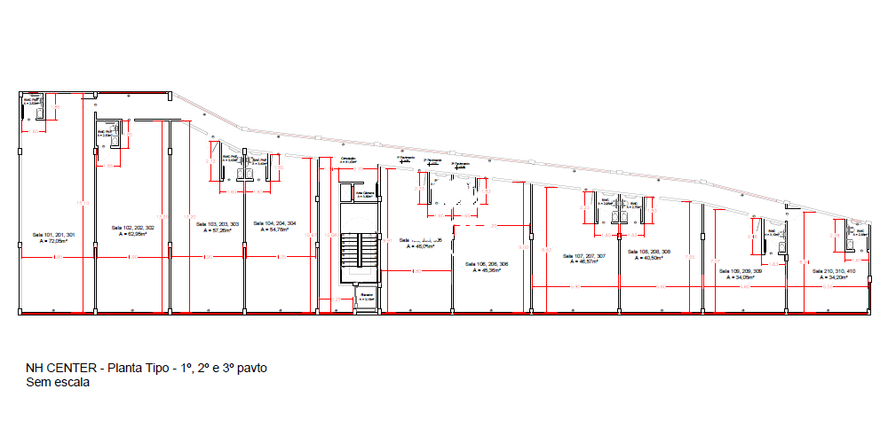
Sala Comercial de 34m² no bairro Souza Cruz, em Brusque

Souza Cruz, Brusque - SC

Publicado em 02/11/2025

34 m²
Valor do aluguel R$ 1.192

Condomínio - R$ 350

IPTU - Não informado

Imobiliária Amo Imóveis

Cód. Imobiliária 14032

Cód. Eu Corretor 237074

Sobre o imóvel

O espaço ideal para seu negocio está aqui!
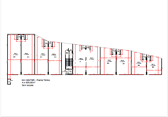
Localizado no bairro Souza Cruz, este novo empreendimento é a escolha ideal para quem busca aliar modernidade, localização estratégica e versatilidade em um só lugar. Com salas comerciais que variam de 34 a 72 metros quadrados, o espaço se adapta perfeitamente às mais diversas necessidades profissionais — seja para consultórios, escritórios, que desejam oferecer conforto aos clientes e praticidade à equipe.
O prédio foi projetado com foco em funcionalidade e estilo, oferecendo infraestrutura moderna, excelente iluminação natural e acabamento de alto padrão. A localização é um dos seus grandes diferenciais: em uma das regiões mais valorizadas e com fácil acesso a outras áreas da cidade, cercado por comércios, serviços e opções de transporte.
Se você está em busca de um ambiente profissional que valorize sua marca e ofereça um espaço à altura do seu negócio, este empreendimento é a oportunidade certa para começar ou expandir com segurança e prestígio. Entre em contato e agende sua visita.

Áreas comuns

  • Condomínio Fechado

Conheça a região